















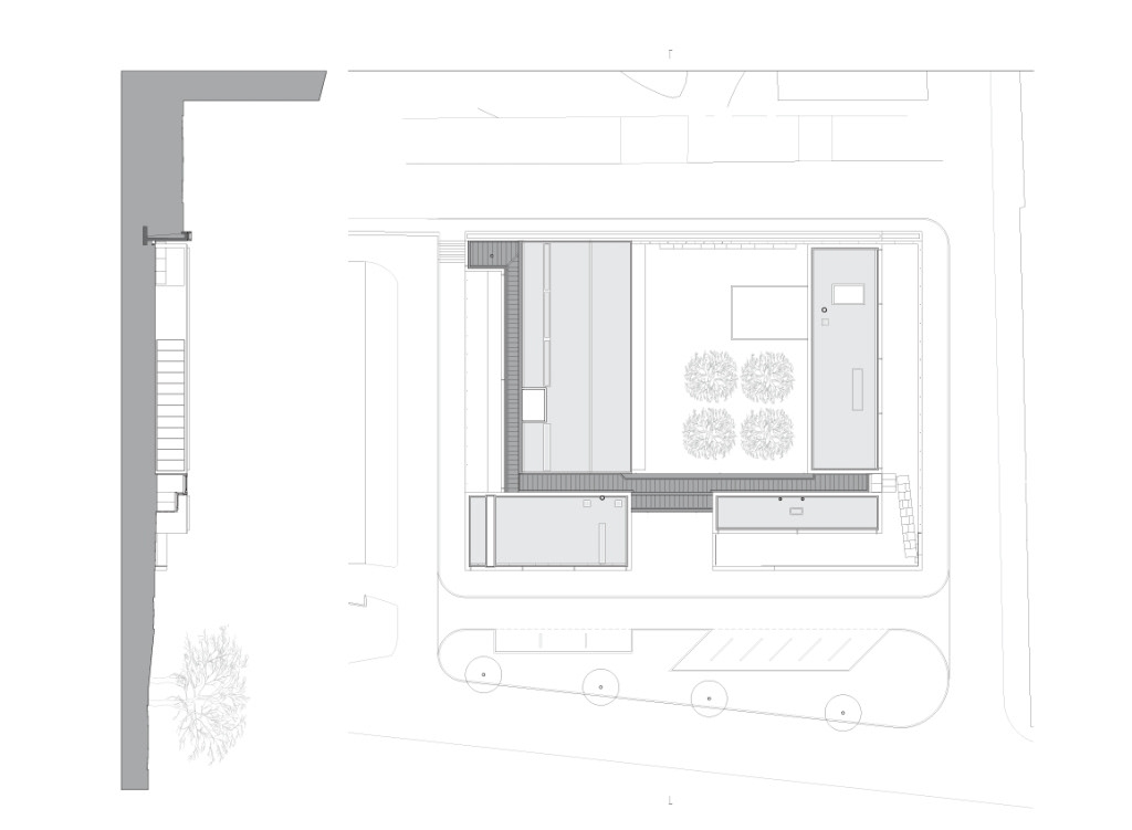
The kindergarten is developed in one floor, around a courtyard. . The solution is defined by the resolution of a set of volumetric and space relations, which is established between the emptiness of the central courtyard and the volumes that structure the program of the construction. The considered volumes designate the presence of the building in the city establishing the transition of scale to the urban centre of Alcanena.
Client: Alcanena Town Hall,
Architecture: Pedro Mendes,
Collaboration: Ricardo Gonçalves, Patrícia Horta, Karin Pereira, Jeni Borges (models),
Landscape Architecture: Conceição Candeias,
Structural Engineering: ARA, Alves Rodrigues & Associados, Lda., Fernando Rodrigues,
Water and Sewage Networks: ENGIMODUS, Engenharia e Gestão de Obras, Lda., Pedro Correia,
Electricity: ARDAN-SPG, Serviços Projectos e Gestão Lda., Miguel Cardoso,
Gas and Air Conditioning: Casa do Projecto XXI, Joaquim Marques da Silva Building,
Building Contractor: Pastilha & Pastilha
Photographs: Rita Burmester
2001 - 2005